Аренда помещения свободного назначения

Россия, Красноярский край, городское поселение Емельяново, посёлок городского типа Емельяново, Московская улица, 1ж

250 000 ₽/мес

500 ₽ за м²/мес.

500 м²
Площадь
1
Этаж

Поделиться

Добавить в избранное



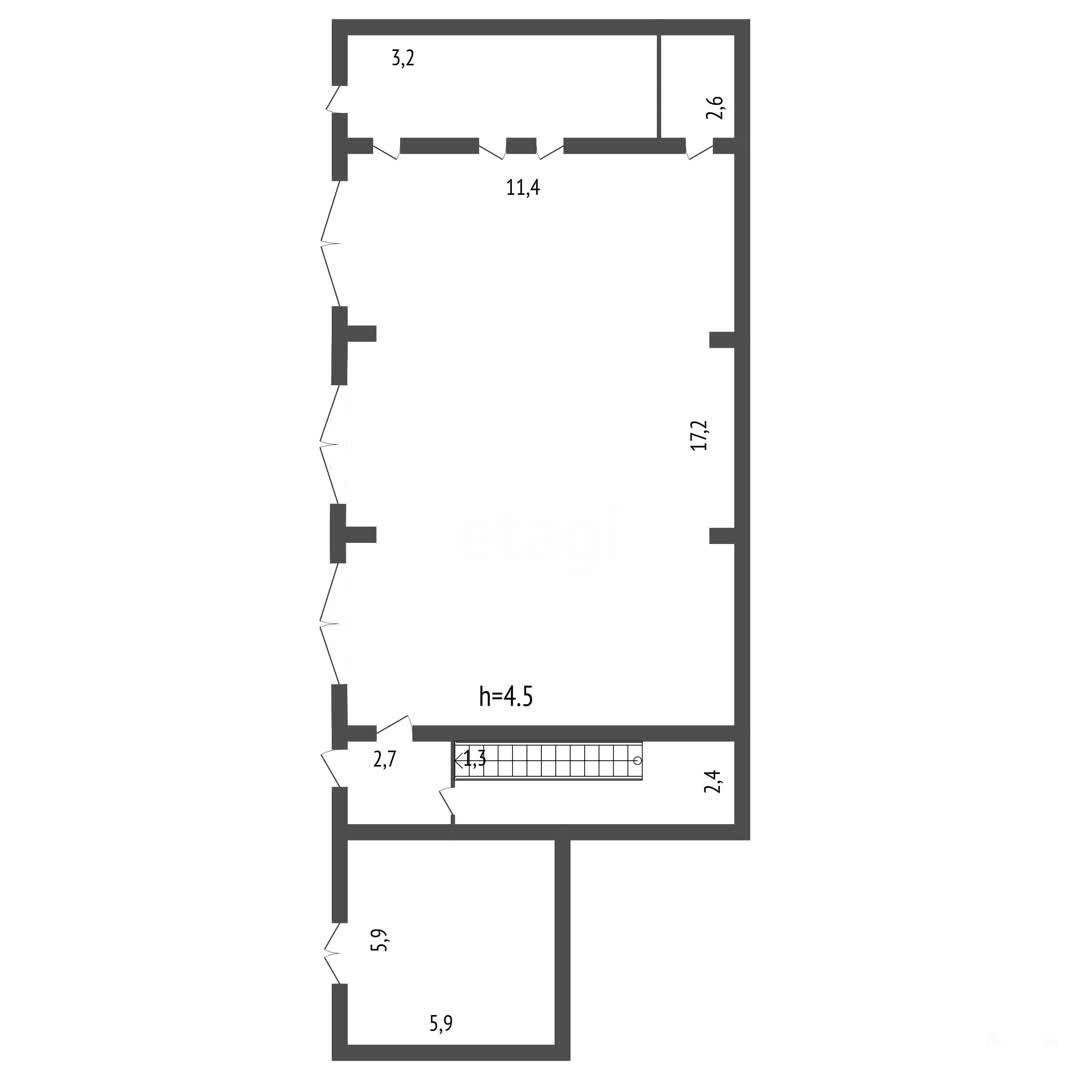
Помещение свободного назначения общей площадью 500 м² расположено на первом въезде в поселок Емельяново, обеспечивая максимальную видимость и доступность с Московской улицы и федеральной трассы. Объект находится в трехэтажном здании, предлагается к сдаче целиком этажом или пополам по 250 м2 2 пошлноценных помещения, что обеспечивает гибкость планирования бизнеса. Помещения разделены и сообщаются через ворота снутренние высотой 3м. Помещение подготовлено для немедленного использования: залиты бетонные промышленные полы с финишной стяжкой, высота потолков составляет 4, 5 метра, что позволяет разместить высокое оборудование, стеллажные системы или создать многоуровневые торговые зоны. Для нужд арендатора несколько мокрых точек под разные нужды. Есть возможность выделить мощности более 50кВт.
Удачное расположение на первой линии гарантирует постоянный поток транзитного и местного трафика, что критически важно для розничной торговли, например, под формат супермаркета, или для логистического и производственного предприятия. Транспортная развязка обеспечивает быстрый выезд в сторону Красноярска, на Московское направление и в сам поселок, оптимизируя цепочки поставок и обеспечивая удобство для клиентов и сотрудников. Это решение для бизнеса, где ключевыми факторами являются локация, готовность инфраструктуры и возможность масштабирования в рамках одного этажа.

Код пользователя: 188452
Номер в базе: 11762390

Дата обновления: 25 февраля 2026