Аренда помещения свободного назначения

Красноярский край, Красноярск, им. газеты Красноярский Рабочий проспект, 91

200 000 ₽/мес

625 ₽ за м²/мес.

320 м²
Площадь
3/4
Этаж

Поделиться

Добавить в избранное

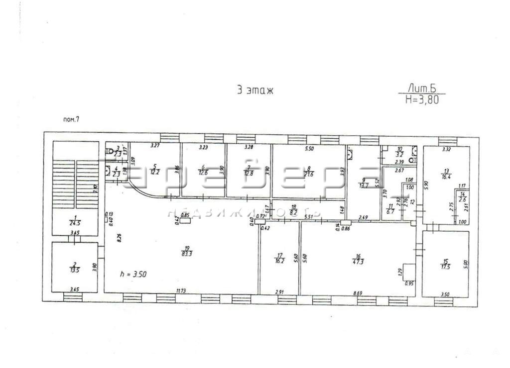
Описание: Предлагается в аренду отдельный третий этаж в кирпичном здании на первой линии проспекта Красноярский рабочий. Это отличное пространство с высокими потолками (3, 80 м) для реализации вашего бизнес-проекта. Общая площадь этажа — 320 кв.м., планировка свободная, с несущими колоннами — позволяет создать как открытое пространство (open space), так и набрать отдельные кабинеты. Уже сформированные кабинеты имеют удобные площади: 13, 16, 21 и 47 метров. Перекрытия железобетонные.
Локация:
- Первая линия проспекта Красноярский рабочий (высокий трафик).
- Напротив — ТЦ «Красноярье» (один из крупнейших торговых центров города).
- Соседство с Институтом Цветных Металлов.
Ключевые выгоды аренды:
1. Высокий пешеходный и автомобильный трафик: Расположение на первой линии и рядом с ТЦ «Красноярье» гарантирует отличную проходимость и заметность для вашего бизнеса.
2. Готовая инфраструктура и поток клиентов: В этом же здании уже работают якорные арендаторы — «Пятерочка», Fix Price, букмекерский клуб «Ставки на Спорт» и мебельная компания. Это обеспечивает постоянный поток посетителей, которые могут стать и вашими клиентами.
3. Свободная планировка и высокие потолки: Высота потолков 3, 80 метра и возможность демонтажа внутренних перегородок (кроме несущих колонн) позволяют адаптировать пространство под любые задачи: от офиса с зонами отдыха до торгового зала или студии.
4. Мощное электричество: Выделенная мощность 75 кВт (напряжение 220 В) позволит использовать любое профессиональное оборудование без ограничений.
5. Помещение для одного арендатора: Вы получаете в свое распоряжение целый этаж, что обеспечивает автономность и приватность для вашего бизнеса.
Кому идеально подойдет это помещение:
Для офиса крупной компании или холдинга: Просторные кабинеты и возможность организовать открытое пространство для отдела продаж.
Для медицинского или стоматологического центра: Высокие потолки удобны для прокладки коммуникаций, а расположение на этаже обеспечивает тишину и конфиденциальность.
Для образовательного или детского центра: Просторные классы, высокие потолки и близость жилых массивов и института.
Для шоу-рума или салона: Отличная возможность организовать большое выставочное пространство с удобными подсобными помещениями.
Для студии танцев, йоги или фитнеса: Идеальная высота потолков и большая площадь.
Для производства, ателье или мастерской:  Железобетонные перекрытия и мощное электричество позволяют разместить легкое производство, сервисную службу или творческую мастерскую.
Технические детали:
- Этаж: 3
- Материал стен: Кирпич
- Высота потолков: 3, 80 м
- Электричество: 75 кВт, 220 В
Цена и условия:
Готовы рассмотреть ваши предложения по цене аренды и условиям сотрудничества. Звоните для организации просмотра!
Аренда коммерческой недвижимости: универсальное неж.пом. площадью 320кв.м. на им. газеты Красноярский Рабочий проспект 91. Звоните, ответим на все вопросы.

Дата обновления: 12 марта 2026