Продажа помещения свободного назначения

8 700 000 ₽

181 250 ₽ за м²

48 м²
Площадь
1/14
Этаж

Поделиться

Добавить в избранное

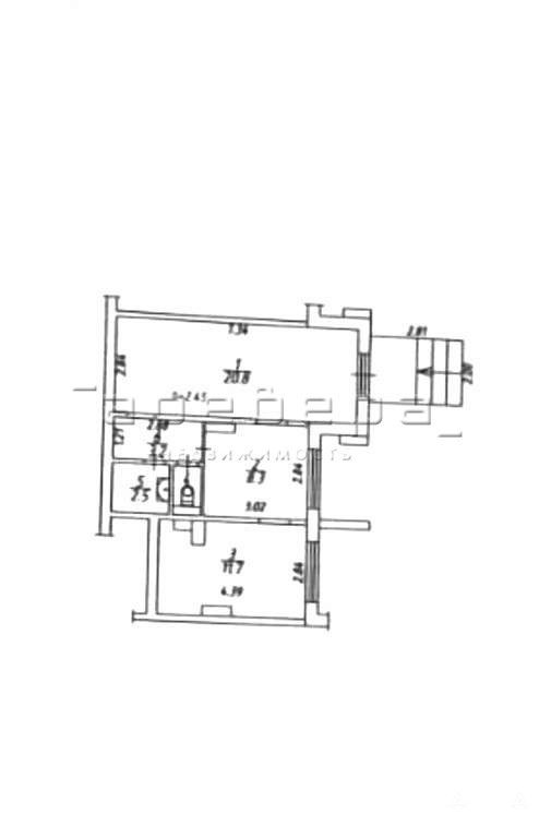
Описание: Продам нежилое помещение свободного назначения в Центральном районе мкр. Покровка. Помещение имеет отдельный вход, кабинетной системы, очень функциональное и вместительное. Имеется тамбур, зона ресепшен, три кабинета, санузел и комната для приема пищи. Есть второй вход через подъезд.
Инфраструктура: Помещение находится на первой линии. Удобный заезд и всегда есть места для парковки. Подойдет под салон красоты, косметологию, офис и пр. Все коммуникации центральные.
Условия: Условия продажи: один собственник, вся сумма в договоре, без обременений.
Звоните! Отвечу на все интересующие вас вопросы. Показ по договоренности.
Продажа коммерческой недвижимости: универсальное неж.пом. площадью 47.5кв.м. на Чернышевского улица 98. Звоните, ответим на все вопросы.

Дата обновления: 30 октября 2025