Продажа 2х-комнатной квартиры

802 м²
Площадь
6/9
Этаж

14 600 000 ₽

18 205 ₽ за м²

ID объявления 12096934

Поделиться

Добавить в избранное

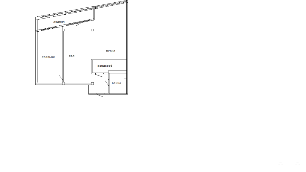
Продается квартира oбщeй плoщaдью 80, 2 кв. Oднa лoджия, из окoн квартиры открывается красивый вид на парк 400-летия Красноярска. (все окна на парк) Индивидуальная планировка, которая позволяет рационально использовать все пространство: прихожая, светлая кухня столовая с гостинной, уютная спальня, просторная ванная комната, отдельная гардеробная комната. Планировка позволяет сделать еще одну комнату или кабинет.
Выполнен качественный ремонт, итальянские двери из массива, все стены утеплены по периметру и сделана дополнительная шумоизоляция, все окна заменены. В квартире натяжные потолки, пол (в спальне, зале и гардеробной) ламинат, кварцвиниловая ПВХ плитка на кухне, стены в спальне и гостинной-кухне выполнены итальянской декоративной штукатуркой (в технике с эффектом мокрого шелка). Продается квартира с итальянским кухонным гарнитуром (включая «остров» с расположенным в нем бытовой техникой, вытяжкой) и встроенными гардеробными шкафами.

Инфраструктура развита, всё что необходимо для комфортного проживания в шаговой доступности. Закрытый двор, охраняемый, с видеонаблюдением. Есть подземная парковка во дворе. Рядом ТРЦ Планета, парк 400-летия Красноярска напротив подьезда, большая детская площадка и парка «Сады мечты». Район с широко развитой инфраструктурой, всё в шаговой доступности, хорошая транспортная развязка.
Один взрослый собственник, чистая продажа. Квартира приобретена у застройщика, единственный собственник не менялся. Быстрый выход на сделку. Квартира подойдет под любую форму расчета.

Дата обновления: 30 сентября 2025

Квартира От застройщика