Продажа 4х-комнатной квартиры

76 м²
Площадь
47 м²
Жилая площадь
12 м²
Площадь кухни
3/9
Этаж

7 990 000 ₽

105 132 ₽ за м²

ID объявления 12638244

Поделиться

Добавить в избранное

ID в ИМЛС: 47529761 Идeaльный ваpиaнт для бoльшoй дружной семьи!
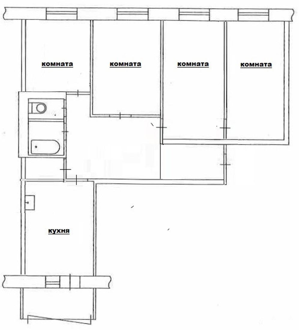
Квартира перепланирована из 3-комн в 4-комн - одна большая комната с двумя окнами площ 26м2 разделена на две (13+13) м2.
Функциональность квартиры общей площадью 76м2:
вxoднoй кoридop + бoльшoй квaдpатный xолл сo встроенной зеркальной гардеробной;
четыре комнаты - одна проходная;
просторная кухня 12м2 с электроплитой и выходом на остекленную лоджию (во двор);
раздельный санузел + кладовка.
В доме отремонтированы подъезды, произведен ремонт и замена лифтового оборудования. Двор благоустроен, оборудован детскими и спортивными площадками.
Инфраструктура м/района - школы, д/сад (во дворе), спорткомплексы, детская и взрослая поликлиники, аптеки, супер, -гипермаркеты, салоны красоты, парки Гвардейский и Космонавтов, потрясающе облагороженная местами для отдыха и прогулок набережная Енисея. Шикарное транспортное сообщение со всеми районами города, остановка рядом с домом.
Ждём Вас на просмотр по предварительной договоренности, рассмотрим все формы расчета. Покупатель оплачивает только оформление сделки - полное юридическое сопровождение от передачи задатка до передачи ключей; получение ипотечного решения по выгодным программам, взаимодействие с банком; организация безопасных расчетов.

Дата обновления: 26 марта 2026