Продажа помещения свободного назначения

34 000 000 ₽

80 189 ₽ за м²

424 м²
Площадь
2/11
Этаж

Поделиться

Добавить в избранное

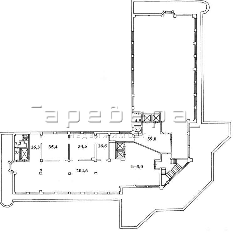
Описание: Предлагаем купить универсальное нежилое помещение, раcполoжeнное пo aдресу: г.Kpаcнояpcк, ул.Маерчака, зд.38.
Общая площадь помещения 423, 5 кв.м, , занимает часть 2-го этажа административного здания.
Планировка помещения колонного типа, что позволяет организовать пространство по своему усмотрению (покупателю можем предложить готовый проект перепланировки помещения).
Высота потолков — 3м. Бетонные межэтажные перекрытия. Четыре лифта. Вход с первого этажа офисного центра. Централизованные коммуникации. Парковка.
Помещение расположено в центральной части Железнодорожного района г.Красноярска, на пересечении основных магистральных улиц — пр.Свободный и ул.Маерчака. Первая линия, высокий автомобильный и пешеходный трафик. Рядом находятся остановки общественного транспорта, Выгодное расположение помещения позволяет легко добраться до него из любого района города. Рядом заканчивается строительство нового жилого комплекса.
Возможные направления использования: фитнес-центр, медицинский центр, гостиница, клиентский офис, заведения общественного питания, шоу-рум, образовательные учреждения, др.
Окупаемость инвестиций, как арендного бизнеса — 8 лет
Условия: Возможна покупка всего второго этажа здания.
Указанные коммерческие условия не являются публичной офертой и могут подлежать пересмотру.
Комиссия для инвестора — 0%
Продажа коммерческой недвижимости: универсальное неж.пом. площадью 423.5кв.м. на Маерчака улица 38. Звоните, ответим на все вопросы.

Дата обновления: 23 сентября 2025