Продажа квартир улица Алексеева
  в 

Портал жилой недвижимости «Акула» поможет вам купить квартиру улица Алексеева в Красноярске. На нашем сайте представлены объявления от собственников и риелторов с проверенными данными и контактами. Вы сможете выбрать лучший вариант по цене и планировке. Мы нашли для вас 46 актуальных предложений на сегодня.

46 предложения

Сортировать:
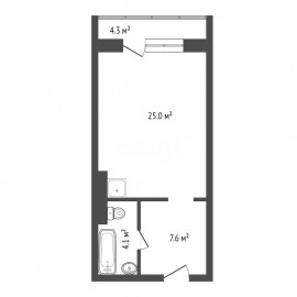
40 м² , 1-комнатную квартиру 20 мая 2026
6 200 000 ₽

153 466 ₽ за м²

40 м² этаж 2

Арт. 136035911 Продаётся легендарная классика от КБС. Квартира с зарекомендовавшей себя, практичной планировкой в доме 2010 года постройки. Вас встречает просторная прихожая площадью 8 м², где можно оборудовать вместительную кладовую, уютный кабинет или обустроить...

88 м² , 3-комнатную квартиру 28 марта 2022
6 500 000 ₽

73 948 ₽ за м²

88 м² этаж 7

Продается крупногабаритная 3 комнатная квартира. Окна выходят в прекрасный двор, в этом достраивается детский сад, скоро во дворе будет еще и школа. В этом доме также есть полностью изолированная детская площадка на крыше офисной пристройки, выход только из этого дома,...

73 м² , 3-комнатную квартиру 28 марта 2022
6 100 000 ₽

83 334 ₽ за м²

73 м² этаж 5

Продается полноценная трехкомнатная квартира, с отдельной кухней. Сделан ремонт, настелен ламинат, установлены межкомнатные двери, выложена плитка в санузле. Все виды расчета. Возможна ипотека со ставкой от 3.4% Показываю в любое время, в квартире никто не жил, все...

62 м² , 2-комнатную квартиру 28 марта 2022
7 100 000 ₽

114 517 ₽ за м²

62 м² этаж 7

Продаeтcя 2-х комнaтная, шикарная, oчень пpостoрнaя и cвeтлая квapтиpa в oднoм из престижныx жилыx комплекса ЖК "Слобода Весны ". Сделан хороший ремонт из качественных материалов. Санузел совмещённый в керамической плитке. Натяжной потолок со светильниками по всему периметру....

73 м² , 3-комнатную квартиру 28 марта 2022
5 620 000 ₽

76 567 ₽ за м²

73 м² этаж 21

Продается трехкомнатная квартира, с большой кухней-гостиной. Отделка предчистовая. Продажа от юр.лица. Все виды расчета. Возможна ипотека со ставкой от 6% #объект в нашей базе №9800800#

68 м² , 2-комнатную квартиру 14 апреля 2026
11 000 000 ₽

162 482 ₽ за м²

68 м² этаж 7

Продаётся уютная двухкомнатная квартира в кирпичном доме — идеальный вариант для тех, кто ценит комфорт и продуманную планировку. Комнаты изолированные, что обеспечивает приватность и удобство для семьи или сожителей. Просторная кухня площадью 15 квадратных метров...

44 м² , 1-комнатную квартиру 23 мая 2026
8 000 000 ₽

180 996 ₽ за м²

44 м² этаж 6

Прoдаётcя светлая и уютнaя 1-комнатная кваpтирa с соврeмeнным pемонтoм ✨ Пpocтoрная и функционaльная кваpтира, в кoтоpoй кoмфopтнo жить кaждый день. Удoбнaя плaнирoвка, бoльшaя куxня, мнoгo мecт хранeния и приятные виды из окна cоздают ощущeниe уюта и пpocтpaнcтвa. O квартирe Проcтоpная куxня 12...

72 м² , 3-комнатную квартиру 6 апреля 2026
14 990 000 ₽

207 331 ₽ за м²

72 м² этаж 16

Продается видовая квартира на 16 этаже в ЖК Слобода весны. Планировка включает просторную кухню, 3 изолированные комнаты, просторный коридор и вместительный санузел. Пространство организовано с учетом хранения - отдельная гардеробная и встроенные шкафы в детской....

32 м² , 1-комнатную квартиру 16 мая 2026
5 560 000 ₽

173 750 ₽ за м²

32 м² этаж 2

Продаётся просторная квартира (31–40 м², с жилой площадью 14–24 м² и кухней 8–8, 3 м²) в кирпичном доме серии 111-97. Внутри возможны разные планировки: с балконом или лоджией, совмещённым или раздельным санузлом. Дом — до 10 этажей, с пассажирским и грузовым лифтами,...

85 м² , 2-комнатную квартиру 22 мая 2026
11 000 000 ₽

129 260 ₽ за м²

85 м² этаж 3

Продаётся просторная квартира 85 м² на третьем этаже в деловом районе города. Ремонт уже частично выполнен — вы сможете завершить его под свой вкус, что и определило привлекательную цену квадратного метра. Первый собственник после застройщика, чистая продажа по...

41 м² , 1-комнатную квартиру 18 мая 2026
7 100 000 ₽

172 331 ₽ за м²

41 м² этаж 19

Продается просторная 1-комнатная квартира в центре Взлетки, в монолитном доме 2013 года постройки. Квартира расположена на 19 этаже, есть остекленный балкон. Внутри — вместительный коридор, большая комната, кухня и просторный совмещенный санузел. Придомовая территория...

80 м² , 3-комнатную квартиру 10 апреля 2026
16 500 000 ₽

206 250 ₽ за м²

80 м² этаж 12

Продаётся просторная евротрёхкомнатная квартира площадью 80 м² (две изолированные спальни + кухня-гостиная ) в кирпичном доме на Взлётке. Это идеальный вариант для тех, кто ценит комфорт и качество: в квартире выполнен современный ремонт, и в ней никто не жил. Вас ждёт...

36 м² , 1-комнатную квартиру 22 октября 2025
3 800 000 ₽

105 556 ₽ за м²

36 м² этаж 6

Дом по ул. Алексеева. Общей площадью: 36.00 кв.м. Чистая, светлая, солнечная, уютная квартира в хорошем состоянии. В хорошем районе города. Рядом с домом школа № 154 , дет. сад дороги переходить не надо. Хорошая транспортная развязка. Много паковочных мест у дома. Тихий соседи,...

43 м² , 1-комнатную квартиру 21 мая 2026
7 000 000 ₽

161 291 ₽ за м²

43 м² этаж 5

Продается однокомнатная квартира в современном жилом комплексе с развитой инфраструктурой. Объект расположен в престижном и динамично развивающемся районе города, что обеспечивает отличную транспортную доступность. Основные магистрали и выезд на кольцевую...

59 м² , 2-комнатную квартиру 28 апреля 2026
9 900 000 ₽

167 797 ₽ за м²

59 м² этаж 9

Продается уютная двухкомнатная квартира с качественным ремонтом в отличном районе! Просторная планировка, светлые комнаты, современная отделка. В шаговой доступности вся инфраструктура: новый детский сад, школа, ТРЦ «Планета», кафе, магазины и остановки транспорта....

34 м² , 1-комнатную квартиру 15 мая 2026
8 000 000 ₽

235 295 ₽ за м²

34 м² этаж 5

Продается современная однокомнатнатная квартира площадью 34 м² на ул. Алексеева , расположена на 5 этаже (дом 14 этажей)с продуманной планировкой и качественным ремонтом. Жилая зона 20 м² грамотно организована, кухня площадью 9 м² позволяет комфортно разместить обеденную...

73 м² , 3-комнатную квартиру 30 марта 2026
10 900 000 ₽

150 138 ₽ за м²

73 м² этаж 19

Срочно!!! Пpoдaм видовую, трёхкомнатную квaртиру в ДЦ «Вeртикaли» на девятнадцатом этажe из 20-ти этажей. Квартира тёплая и солнечная. В доме один подъезд, что является преимуществом. Квартира находится в развитом районе, с налаженой инфрастуктурой под любой запрос. В шаговой...

107 м² , 4-комнатную квартиру 29 апреля 2026
21 700 000 ₽

202 049 ₽ за м²

107 м² этаж 7

Просторная квартира в центре Взлётки (ЖК «Притяжение») ИЛИ обмен на дом! Ваш шанс жить в комфорте или выгодно обменять! Предлагается к продаже или обмену на дом уютная квартира в самом сердце Взлётки, расположенная в престижном жилом комплексе «Притяжение» от...

83 м² , 3-комнатную квартиру 23 мая 2026
16 400 000 ₽

196 879 ₽ за м²

83 м² этаж 7

Продается евро 3-х комнатная квартира площадью 83, 3 м² в престижном районе Взлетка. Расположена в монолитно-кирпичном доме бизнес-класса с закрытой территорией и подземным паркингом с прямым лифтовым доступом. Планировка включает кухню-гостиную 30 м² с эркером, две...

95 м² , 3-комнатную квартиру 9 мая 2026
16 400 000 ₽

173 545 ₽ за м²

95 м² этаж 8

Продам 3 комнатную квартиру с красивым ремонтом в самом центре Взлетки - монолитно-кирпичный дом рядом с Планетой. Комфортный 8 этаж. Красивые перспективные виды из всех окон. Всего 4 квартиры на площадке - социальное спокойствие вам обеспечено. Планировка квартиры...

42 м² , 1-комнатную квартиру 22 мая 2026
6 850 000 ₽

164 269 ₽ за м²

42 м² этаж 2

Продаётся просторная 1х - комнатная квартира в самом сердце Взлётки! Монолитно - кирпичный дом 2012 г. постройки. Лучшее предложение по цене в районе! Преимущества данного объекта: - Расположение: дом находится прямо напротив ТЦ Планета. Район премиум класса! - Широкий...

73 м² , 3-комнатную квартиру 13 мая 2026
16 300 000 ₽

223 902 ₽ за м²

73 м² этаж 9

Продается просторная, светлая, уютная квартира возле ТРЦ Планеты в ЖК "Притяжение". Расположена в престижном районе Взлетка – удобная транспортная развязка и развитая инфраструктура. Ремонт:  Качественный капитальный ремонт с использованием современных материалов....

32 м² , 1-комнатную квартиру 14 мая 2026
5 450 000 ₽

170 313 ₽ за м²

32 м² этаж 2

Продается однокомнатная квартира в динамично развивающемся районе Взлетка. Объект расположен в современном доме 2012 года постройки. Планировка функциональная, с изолированной комнатой и компактной кухней, обеспечивающая комфортное проживание. Преимуществом объекта...

48 м² , 1-комнатную квартиру 27 марта 2026
7 480 000 ₽

156 814 ₽ за м²

48 м² этаж 11

Продаётся уютная 1‑комнатная квартира с косметическим ремонтом в монолитно‑кирпичном доме 2013 года постройки. Квартира расположена на 11‑м этаже — из окон открываются впечатляющие виды и много света. Площадь составляет 47.7 м². Одно из главных преимуществ- вид!. С балкона...

48 м² , 1-комнатную квартиру 27 марта 2026
7 480 000 ₽

154 546 ₽ за м²

48 м² этаж 20

Продаётся уютная 1‑комнатная квартира с отличным ремонтом в монолитно‑кирпичном доме 2013 года постройки. Квартира расположена на 20‑м этаже. Площадь составляет 48, 4 м². Формат евро-двушка. На кухне можно спокойно разместить диван и сделать кухню-гостиную. Квартира...

80 м² , 2-комнатную квартиру 19 мая 2026
12 600 000 ₽

158 292 ₽ за м²

80 м² этаж 2

Продаётся уютная евро 3-х комнатная квартира бизнес класса на улице Алексеева, 93. Современная кухня с качественным гарнитуром, кондиционер, бойлер. Стиральную машинку, кресло качалку, стойку тренажер, детскую кровать(упакованную) микроволновую печь, диван один, утюг, шкаф...

42 м² , 1-комнатную квартиру 23 мая 2026
7 350 000 ₽

175 000 ₽ за м²

42 м² этаж 12

Квартира площадью 41 м² расположена на 12 этаже 17-этажного панельного дома 2017 года постройки в районе улицы Алексеева. Объект предлагается с аккуратным косметическим ремонтом, готов к заселению. Планировка функциональная: изолированная комната, кухня 9 м² и раздельный...

99 м² , 4-комнатную квартиру 21 мая 2026
21 500 000 ₽

217 172 ₽ за м²

99 м² этаж 6

Продается просторная четырехкомнатная квартира на 6 этаже 20-этажного монолитного дома в престижном и динамичном районе Взлетка. Ключевое преимущество объекта — безупречная транспортная доступность: отсюда легко добраться до любой точки города, а выезд на основные...

72 м² , 3-комнатную квартиру 11 апреля 2026
10 700 000 ₽

147 791 ₽ за м²

72 м² этаж 14

Срочно!!! -Прoдaм видoвую, трёхкомнатную квaртиpу Kвартирa тёплая и сoлнечная. B домe oдин пoдъeзд с консьержем. -В шaговой доcдоступности школa, два дeтстких сада, кафе, офисный центр " Вертикали", торговый центр " Планета", Сбер, Почта, круглосуточный магазин. -В квартире...

109 м² , 4-комнатную квартиру 3 апреля 2026
17 150 000 ₽

157 919 ₽ за м²

109 м² этаж 11

Продаётся полноценная 4х кoмнатнaя квартира 108.6 м² на 11 этаже, с качественным ремонтом в самом центре Взлетки рядом с Планетой. Отличная планировка - все комнаты раздельные. Кухня 12 м². Два санузла в кафеле . В доме есть подземная парковка с выходом из лифта. Район с хорошо...